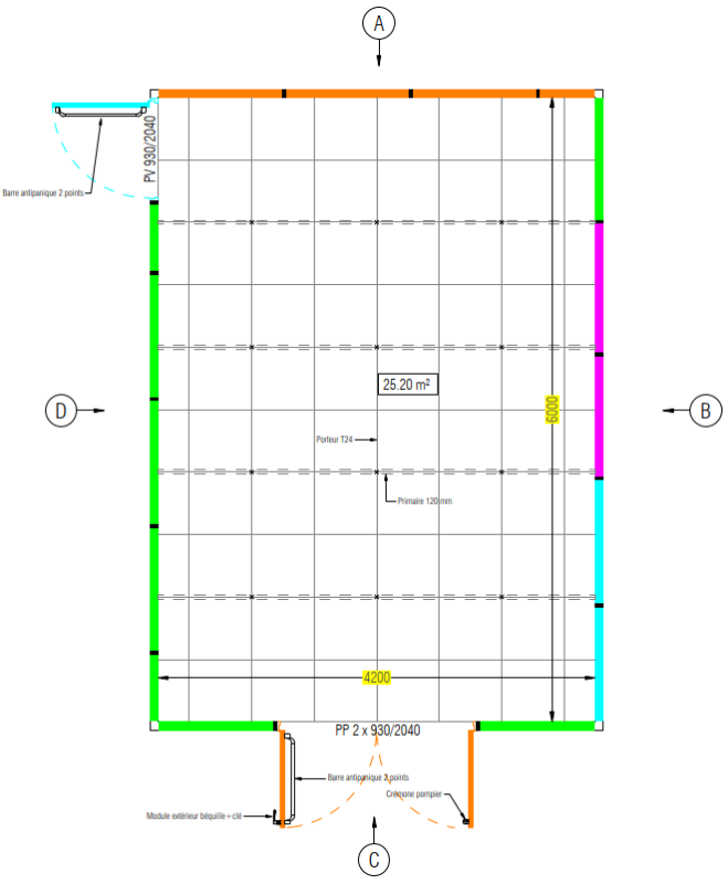
Cabine d’essai de 25 m2 à récupérer avant le 28/11/25
17 m2 de cloisons amovibles pleines OFFICE 80 40RA avec 1 traverse supplémentaire
Ossature aluminium brut
Profils aluminium
Panneau de remplissage en BF13 revêtu
Ame laine de 45mm
Affaiblissement acoustique : RA 40dB
Épaisseur : 78 mm
PV CERFF BEB2 C 6017-1 V2
8 m2 de cloisons amovibles pleines OFFICE 80 40RA
Ossature aluminium brut
Profils aluminium RAL
Panneau de remplissage en BF13 revêtu
Ame laine de 45mm
Affaiblissement acoustique : RA 40dB
Surface : 8m2
Épaisseur : 78 mm
PV CERFF BEB2 C 6017-1 V2
43 m2 de cloisons amovibles vitrées toute hauteur simple vitrage CLEARBOX 80
Ossature aluminium brut
Profils aluminium
Vitrage feuilleté 55.2 clair maintenus par parcloses et joint anti vibratile (résistance suffisante en cas de projection de liquide et en cas de projection d’objet, le verre casse mais reste en place)
Epaisseur : 78mm
1 bloc porte, huisserie aluminium
porte âme pleine stratifiée 930+930x2040, chant en bois dur
ferrage 4 paumelles, serrure clé I à larder, béquillage
Linox 493 de Bezault sur rosace et butoir 3737.
Barre anti-panique 2 points
1 bloc porte, huisserie aluminium
RAL au choix, porte âme pleine stratifiée 930x2040, chant en bois dur,
ferrage 3 paumelles, serrure clé I à larder, béquillage
Linox 493 de Bezault sur rosace et butoir 3737.
Barre anti-panique 2 points
NB : pas de poignées côté extérieur
5 poteaux d’angle 90°, 2 départs
25 m2 de faux plafond en dalle PVC compact avec ossature primaire PLP120 - repris entre mur
Dépose autonome (attestation d’assurance RC + décharge de responsabilité + EPI obligatoires) : 6000 € HT
Déposé prêt à charger : date de disponibilité et prix à confirmer
Prix à débattre suite à visite
VENTE AU LOT UNIQUEMENT
Pour toute demande de photos supplémentaires et visite, merci d’indiquer vos numéro de téléphone, nom et créneaux disponibles.
